164.49€ 206.99€
Ir pieejams
164.49€ 206.99€
Ienesiet savā pagrabā vairāk dienasgaismas ar šo pagraba logu, radot gaišāku un aicinošāku telpu.
- Izturīgs materiāls: Pagraba loga rāmis ir izgatavots no PVC, un tam ir furnitūra un rokturis, kas nodrošina ilgstošu izturību un uzticamu darbību. Turklāt stikls nodrošina siltumizolāciju, skaņas izolāciju un labu gaismas caurlaidību, lai uzlabotu komfortu un efektivitāti.
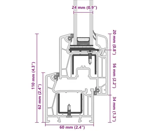
- Stabilā konstrukcija: Rāmja dziļums ir 60 mm, un tas ir balstīts uz 5 kameru sistēmu ar U veida tērauda serdi iekšpusē, lai nodrošinātu lielāku stabilitāti.
- Drošība un aizsardzība pret noplūdēm: Šis logs ir aprīkots ar drošu bloķēšanas sistēmu, kas piedāvā paaugstinātu drošību un aizsardzību jūsu pagrabam. Turklāt malu blīvēšanas tehnoloģija novērš ūdens noplūdes un samazina mitruma uzkrāšanos, saglabājot jūsu pagrabu sausu.
- Divi ventilācijas režīmi: Izejas logu var noliekt ventilācijai, nodrošinot drošu gaisa plūsmu pat lietainās dienās, vienlaikus novēršot ūdens iekļūšanu. To var arī horizontāli atvērt uz iekšu, padarot to ideāli piemērotu pilnīgai ventilācijai vai vienkāršai tīrīšanai.
- Plašs pielietojums: Šo logu aku var izmantot kā pagraba logu, dārza šķūņa logu, garāžas logu, nelielu logu dzīvojamai telpai vai kā logu istabai.
- Krāsa: Antracīts
- Materiāls: PVC un stikls
- Kopējais izmērs: 100 x 70 cm (P x A)
- Stikla izmērs: 78 x 48 cm (P x A)
- Rāmja profila augstums: 62 mm
- Vērtnes profila augstums: 60 mm
- Loga funkcijas: Veramas un griežamas pa kreisi
- Profils: Rāmim ir 60 mm dziļums un 5 kameru sistēma
- Stiklojums: Logam ir dubults termostiklojums ar argonu-24 mm (4-16AR-4i)-Ug=1,1 W/(m²·K)
- Ar malu blīvējumu
- Armatūra: U-veida tērauda serde
- Sērijas nosaukums: RISOR
- Nepieciešama montāža: Jā



